Et si nous fabriquions nos masques en tissus à la maison ?
Compte tenu de la situation sanitaire actuelle, il semblerait judicieux, d'après les professionnels de santé, d'utiliser des masques pour sortir à l'extérieur dès aujourd'hui. Bien que l'efficacité du masque en tissu ne soit pas encore totalement prouvée, les spécialistes estiment tout de même qu'ils sont toujours mieux que rien !🧵 😊
Alors autant assurer ses arrières et en porter ! Mais attention, pour que votre masque soit vraiment protecteur et ne laisse pas passer le virus, certaines règles doivent être respectées ! 🦠 Ainsi, l'afnor (association française de normalisation) a publié des règles et modèles à suivre pour réaliser son masque maison, les voici ici.
Pour confectionner votre masque rien de plus simple il vous faut simplement :
- du tissu : l'étoffe doit être serrée, le tissu doit laisser passer l'air pendant la respiration et être lisse pour ne pas être irritant !
- 2 élastiques de 35cm
De multiples tutos de masques maisons sont disponibles sur internet, en vidéo, photos, etc... Nous allons aujourd'hui vous donner les explications du masque à pli. N'hésitez pas à consulter les règles fournies par l'afnor pour plus de détails et pour les informations de confections du masque à bec ! 😷
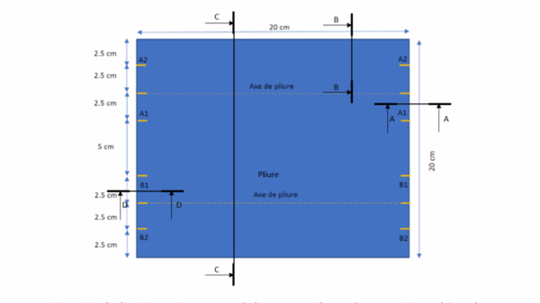
Pour la confection de votre masque, vous aurez besoin d'un carré de tissu de 20x20cm que vous plierez comme indiqué sur ce patron :
Une fois votre tissu prêt, n'hésitez pas à doubler votre carré d'une nouvelle épaisseur. Ensuite, préparez vos élastiques et c'est parti.😊
- Réalisez une pré-couture sur tout le tour de votre tissu à 1cm des bords.
- Repliez le haut et le bas du tissu en un ourlet de 1,2cm vers intérieur.
- Piquez les plis en piquant As sur A2 et B1 sur B2 sur chacun des deux bords (cf. image).
- Piquez les élastiques soit : sur chacun des bords en haut et en bas pour glisser les élastiques derrière les oreilles, soit en haut sur chacun des bords gauches et droits puis de même en bas du masque pour un passage des élastiques derrière la tête.
Nous espérons que ce petit tuto vous aidera. Surtout, prenez garde à l'utilisation de votre masque, faites attention à bien respecter les gestes barrières ! 🧼
Prenez soin de vous !
@tous : Allez-vous réaliser vos masques ? 😷 Partagez nous vos réalisations en photos sur les réseaux sociaux avec le hashtag #TousMasqués.
Sources : site internet de l'afnor et site internet du gouvernement.